top of page
ÚVODNÍ
OBČANSKÉ STAVBY
RODINNÉ DOMY
KOMERČNÍ STAVBY
VEŘEJNÝ PROSTOR
URBANISMUS - ÚP
CV
KONTAKT
More
Use tab to navigate through the menu items.
Tomáš Havelka
Architekt
__vizu1F2
press to zoom
kb4_vizualizace od rohu
press to zoom
VV1_detail pohled od lavky
press to zoom
7
press to zoom
1
press to zoom
2
press to zoom
3
press to zoom
6
press to zoom
5
press to zoom
Show More
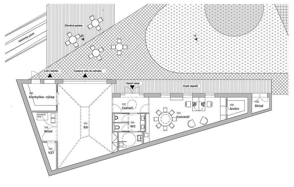
Obecní dům
Kbelnice
BACK
bottom of page